|
|
|
|
||||||||||||||||||||
|
|
|
|
||||||||||||||||||||
|
Текущее время: 01.04.26, 21:08 Кровостоки, долы, балки, двутавры и сопроматМодераторы: Олег Бритва, Модераторы
Кровостоки, долы, балки, двутавры и сопроматКто-нибудь, сделайте на бритве кровостоки!
Re: Флуд (тут пишут, когда сказать хочется, но некуда)Никаких кровостоков не существует. Плоть будет плотно обжимать и эти ложбинки на ножах. Ложбинки эти - "дол" для облегчения веса всего лишь.
Re: Флуд (тут пишут, когда сказать хочется, но некуда)ну и как бонус дополнительная прочность клинка
Re: Флуд (тут пишут, когда сказать хочется, но некуда)Про прочность часто слышу, но не слышал аргументов, по каким причинам от дола прочность повышаться должна?
Re: Флуд (тут пишут, когда сказать хочется, но некуда)Долы способствуют уменьшению веса изделия без уменьшения его прочности. Заметно это (уменьшение веса) будет и было только на достаточно больших клинках как то мечи, и т.д. На коротком же, к примеру охотничьем холодном оружии, долы делаются из декоративных соображений.
Re: Флуд (тут пишут, когда сказать хочется, но некуда)Таки на короткоклинковом - способствуют стойкости к боковым нагрузкам (сопромат и Википедия рулят
"...Первая и самая очевидная функция долов — облегчение и «упрочнение» клинка: при тех же размерах клинок с долами имеет ощутимо меньший вес. Аналогично при той же массе долы позволяют увеличить габариты поперечного сечения клинка и за счёт этого увеличить момент инерции поперечного сечения клинка, что приводит к увеличению прочности на изгиб. В сечении клинок с симметричными широкими долами подобен двутавровой балке, которая известна в архитектуре значительной жёсткостью при малой массе..." Вдогонку - обсуждения на ганзе хоть и не люблю я этот сайт: http://forum.guns.ru/forum/5/511236.html" onclick="window.open(this.href);return false;
Re: Флуд (тут пишут, когда сказать хочется, но некуда)Насколько я понял, если без демагогии, хитрых переплетений мысли, то если в клинке вырезать дол, то его прочность как минимум не увеличится, что логично. Как собственно и в тавровой балке - если заполнить сталью те П-пустоты, то прочность её как минимум не уменьшится.
Re: Флуд (тут пишут, когда сказать хочется, но некуда)Этот флуд вовсе не флуд, надо переносить в нормальное обсуждение.
Вас не поймёшь, - в курилке по теме говорите... Ремонт опасных бритв, звонить с 11-00 до 23-00, +79267729357, (viber, whats app, telegram, VK), спросить Олега.
YOUTUBE Олег Бритва INSTAGRAM Олег Бритва Re: Флуд (тут пишут, когда сказать хочется, но некуда)Так вот та же википедия, там же:
Т.е то что они для чего-то служат функционального на коротком клинке нигде не обосновано.
Re: Флуд (тут пишут, когда сказать хочется, но некуда)Если заполнить, то прочность на прогиб и кручение станет меньше. Re: Флуд (тут пишут, когда сказать хочется, но некуда)Кай, при заполнении тавра или двутавра, его прочность уменьшится, т.к. пропадут ребра жесткости. Самый простой пример не совсем по теме, но показывает работу ребра, возьми лист бумаги и посмотри какие усилия нужны для его сгибания, потом сверни лист в трубочку (даже в "один слой") и сравни усилия на изгиб.
Re: Флуд (тут пишут, когда сказать хочется, но некуда)В общем сопромат в помощь!
Re: Флуд (тут пишут, когда сказать хочется, но некуда)Вобще конечно в оружии нет ничего непродуманного:
Spoiler Show Темой его диплома был двуручный меч с "пламенеющим" клинком. У такого меча почти весь клинок - кроме конечных одного-полутора футов - зигзагообразный. Ученые доперли до очевидного: удар наносится только концом, где нормальное лезвие. Что ж касается метрового синусоидовидного отрезка - это, мол, в подражание картинам, изображающим архангелов с огненными мечами: волнистый язык пламени. И диссертации писали: "Влияние христианской религиозной живописи на вооружение рыцарей-крестоносцев". Непочтительный Тарасюк не оставил от ученых мужей камня на камне. Оружие всегда предельно функционально! - ярился он. Оно украшается - да, но изменение формы в угоду идеологии - это бред! (Шел свободомысленный 57 год.) Парадное оружие, церемониальное - да, бывают просто побрякушки. Но боевой меч - тут не до жиру, быть бы живу, уцелеть и победить надо, какая живопись к черту. Изобретатель этого меча был гений, восторгался Тарасюк. После Первого крестового похода он задумал совместить мощь большого меча с режущим эффектом гнутой арабской сабли: рубить с _п_о_т_я_г_о_м_ лучше гнутым клинком, тянешь к себе - и изгиб сам режет, принцип пилы. Но сабля стальной доспех не возьмет, а гнутый двуручные меч требует трехметрового роста, каковым не обладали даже лучшие из рыцарей: поэтому изгибов-дуг несколько - это меч-сабля-пила! Парируемый клинок врага легче задерживается в углублении изгиба и не скользит до гарды - улучшаются защитные качества, легче перейти к собственному поражающему выпаду. Зигзаообразность придает мечу _п_р_у_ж_и_н_н_о_с_т_ь_ в продольной оси - чем смягчается при парировании удар по рукам, облегчается защита в фехтовании. Наконец, та же пружинность сообщает удару концом клинка дополнительную силу: так удар кистеня, сделанного из свинцового шара на гибкой рукояти из китового уса, сильнее удара молотка того же веса и той же длины жесткой деревянной рукояти. Кафедра и оппоненты, улыбаясь темпераменту, пожимали плечами. И были неправы в недооценке дипломанта. Закончив теоретическую часть защиты, вспотевший Тарасюк перешел к демонстрационной: кивнул в аудиторию первокурснику у дверей: - Костя - давай! Костя исчез и через минуту дал, вернувшись с другим первокурсником. Торжественно, как королевские герольды сокровище двора, они несли полутораметровый двуручный меч с пламенеющим клинком. Улыбки комиссии сделались неуверенными. У Тарасюка загорелись глаза. Он взял меч и сделал выпад. Дипломную комиссию снесло со стульев. Аудитория взвыла от счастья. Подручные-первокурсники извлекли из портфеля железный прут и положили концами меж двух стульев. Тарасюк, крутнув из-за головы (дррень! - дверца книжного шкафа) взмахнул зловеще свистнувшим мечом и перерубил прут, вогнав острие клинка в пол. - Браво... - сказал дипломная комиссия, осторожно возвращаясь на свои места. - Бис! - добавили зрители, подпрыгивая в дверях. - Теперь возьмем меч с обычным клинком, - сказал Тарасюк. - Спасибо, - возразил председатель комиссии, легендарный декан Мавродин, - достаточно. Вы согласны со мной, коллеги? Трудно не признать, что глубокоуважаемый дипломант избрал весьма, э-э, убедительную форму защиты своих научных взглядов... да.
Re: Флуд (тут пишут, когда сказать хочется, но некуда)С листом бумаги пример не корректный - в примере мы не удаляем его часть, а изменяем форуму, что не вяжется с темой дола. А вот корректный пример с листом будет, если взять лист бумаги и сделать любые вырезы на нем - никакой прочности это не добавит. Так же стальной прут (круг, квадрат) прочнее на все виды воздействия, нежели труба того же диаметра, за исключением провисания под собственным весом.
Ребра жесткости - минимизируют "вред" от снижения веса (количества материла). Куда же они пропали? Они остались на месте, и мы к ним добавили ещё таких же ребер очень много, при заполнении пустоты. При заполнении тавра - его прочность возрастет, но возрастет и вес, что не всегда выгодно/целесообразно, например при провисании прочность упадет лишь из за его веса, а не "ребер жесткости".
Re: Флуд (тут пишут, когда сказать хочется, но некуда)Думаю, что ребра жесткости никуда не пропадают, они остаются в теле. Но вес сильно увеличивается. А в пример с бумагой хочется добавить: если трубочку из бумаги заполнить другими трубочками из бумаги (даже если заполнить чем нибудь сыпучим), как изменится прочность??? Дол позволяет снизить вес клинка, с небольшой потерей прочности. Согласитесь, что усилие для перехода образца в пластическую деформацию надо будет приложить все же меньше, чем на полнотелом образце (при условии что длина и ширина сечения образцов одинаковые) Одним ударом дерева не срубишь. . Татарская поговорка
Re: Флуд (тут пишут, когда сказать хочется, но некуда)Вот расчетные данные для равных сечений металлопроката:
Площадь сечения везде одинакова, 1900 квадратных миллиметров. Пересчитывать при разной площади сечения я не хочу, может и будет выигрыш в прочности для цельного предмета, значит я заблуждался. Экономического точно не будет. Добавлено спустя 1 минуту 34 секунды: эээ, забыл прикрепить рисунок
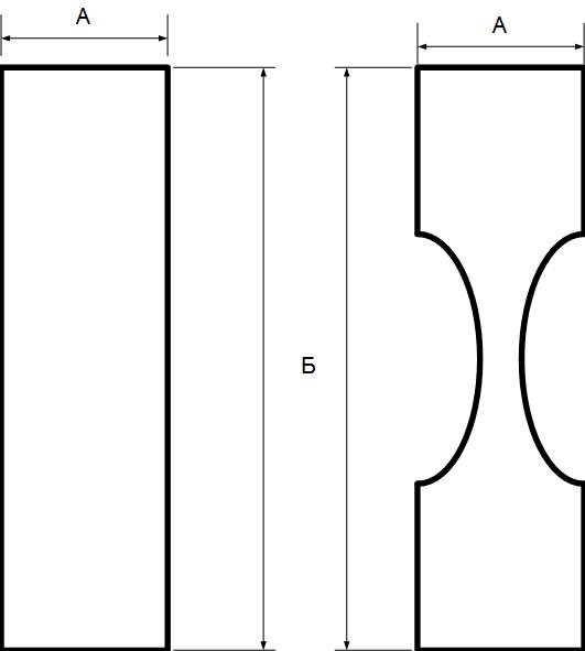
Re: Флуд (тут пишут, когда сказать хочется, но некуда)На рисунке нарисовал сечения, и попробую объяснить что я имел ввиду.
При равных длине и ширине сечения образца, прочность у полнотелого будет больше. Но у правого образца при небольшой потере прочности вес будет значительно меньше. Одним ударом дерева не срубишь. . Татарская поговорка
Re: Флуд (тут пишут, когда сказать хочется, но некуда)Возможно так и будет, хотя наверное будут варианты, когда выборка не повлияет на прочность, исходя из картинки что я привёл.
Re: Флуд (тут пишут, когда сказать хочется, но некуда)Нож не совсем, точнее совсем не двутавр, не корректно.
Re: Флуд (тут пишут, когда сказать хочется, но некуда)Тогда для поиска истинны придется обсчитывать конкретное сечение, мне этим заниматься некогда, с удовольствием посмотрю на результаты. Еще можно проверить на полосе металла, если у кого под рукой оные вместе с фрезером есть. Для измерения нужны будут тиски, линейка и набор грузов
Кто сейчас на конференцииСейчас этот форум просматривают: нет зарегистрированных пользователей и 2 гостя | |
|
|
|
|
||||||||||||||||||||||||||||||||||||



